ゆうぶん535 テナント情報

伊勢宮ゆうぶん535ビル 4・5階

住所

松江市伊勢宮町535番地26

テナント様紹介

 

 

 

 

空室状況

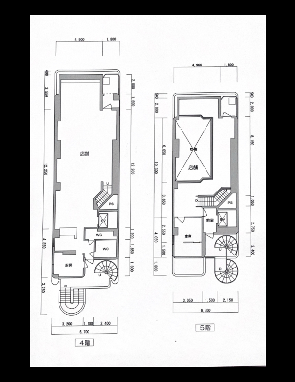
【間取り】

3

・200㎡を越えているため広く利用いただくことが可能です!
・4階~5階、吹き抜け◎開放感あり
・賃料には別途消費税がかかります。

ゆうぶん535

ゆうぶん535